Спектрон-220Р
Данный товар находится в архиве! Возможность поставки уточняйте у менеджера!!!
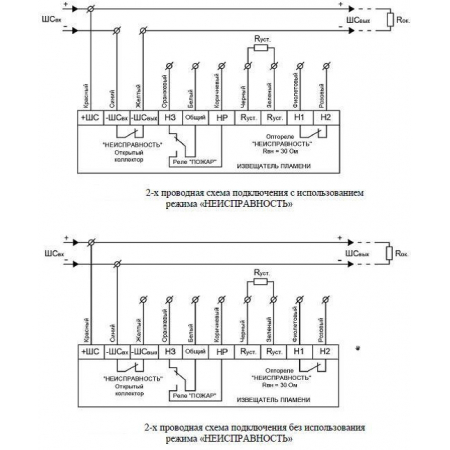
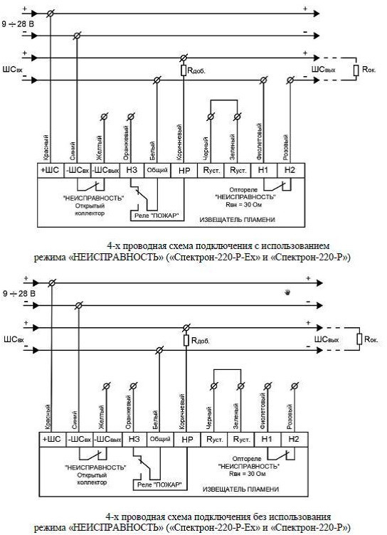
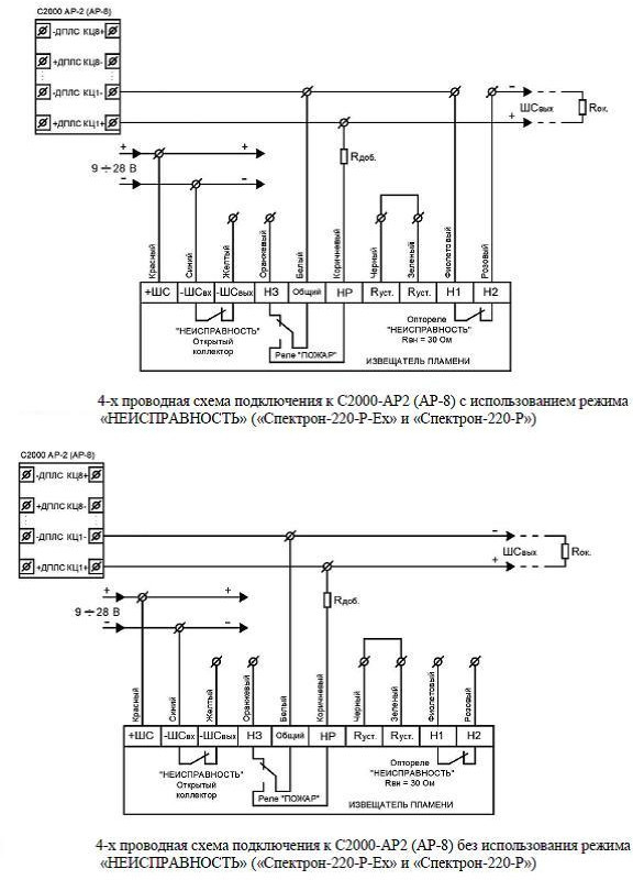
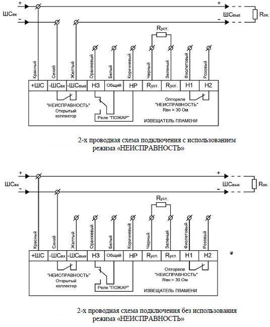
Спектрон-220-Р - извещатель пламени инфракрасного диапазона (ИК) на 2 кабельных ввода пожарный искробезопасный взрывозащищенный (ExiaGaIIC - электронный блок; 0ExiaIICT6Ga - выносной элемент), из оцинкованной низкоуглеродистой стали (СТ-20), степенью защиты (IP66/68), с использованием встроенного реле (1НО и НЗ) предназначен для выдачи в шлейф пожарной сигнализации тревожного сигнала «Пожар» (принцип действия - измерение интенсивности ИК) и применяется на предприятиях химической, нефтегазодобывающей, нефтегазоперерабатывающей отраслей и взрывоопасных зонах класса (0 и ниже) других производств.
Данный извещатель совместим с любым ППКП, искробезопасные электрические цепи которых имеют параметры, позволяющие подключение данного извещателя.
После срабатывания извещатель автоматически возвращается в дежурный режим.
Площадь, контролируемая извещателем, соответствует СП5.13130.2009 и зависит от высоты защищаемого пространства.
Крепление извещателя осуществляется с помощью крепёжного комплекта.
Для проверки работоспособности извещателя используется магнит.
При установке извещателя вне взрывоопасных зон, он может работать практически с любыми приемно-контрольными приборами.







