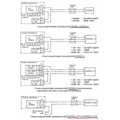
Световые и светозвуковые табло серии СКОПА
18
товаров
Артикул: 19900
Артикул: 19908
Артикул: 214762
Артикул: 214538
Артикул: 234065
Артикул: 19913
Распродажа
Артикул: 19729