Количество ШС
24 (охр, пож, технолог)+1 (тампер вскрытия)
Ток нагрузки в ШС, мА
До 250
Энергонезависимая память,
1000 (событий); 500 (пользов.)
Максимальная длина линии связи, м
15 (RS-232); 1200 (RS-485)
Рекомендованный кабель
2-х парный витой (экранир, неэкранир)
Количество клавиш управления
25
Номинальное сопротивление выносного резистора, кОм
2; 3; 3,9; 7,5
Рекомендуемый АКБ, А*ч
2х(7; 9)
Реле выходы
3 (НО)+2 (НО и НЗ)
Количество светодиодов, шт.
30
Время готовности к работе, с, не более
5
Рабочая скорость передачи, Бит/с
7680; 15360
Интерфейс
Dallas TM, RS-485, RS-232
Встроенный считыватель
Touch Memory
Кнопка выхода (да нет)
Возможно подкл.(НО или НЗ)
Датчик положения двери (да нет)
Возможно подкл.(НО)
Напряжение в ШС, В
До 26
Контроль линии (цепи)
Есть
Дополнительное оборудование
Есть: БП; внешние: счит.ТМ и кн. вых. (приоб)
Материал
Металл, окрашенный порошковым методом
Клавиатура (или регистратор)
Механические кнопки с подсветкой
Тип установки
Накладной горизонт. и вертикаль.
Управление прибором
По клавиатуре, WEB-интерфейсу и ПК
Максимально комутируемые напряжение/ток, В/А
Пост. 30 и перем. 125/1; пост. 60/0,1
Тип изделия
Прибор приемно-контрольный охранно-пожарный и управления
Индикация
Световая и звуковая
Цвет
Серый
Тип считывателя (без считывателя-о ключи ТМ-тм карты-к)
ТМ
Напряжение питания, В
187 - 242; 10,5 - 13,8
Ток потребления. мА
150
Потребляемая мощность, Вт
18
Разъем
Клеммы
Диапазон рабочих температур, °С
+5...+40
Степень защиты, IP
20/30 (при герметизации кабель. отв.)
Габаритные размеры, мм
340х350х85
Масса (без аккумулятора) , не более, кг
5
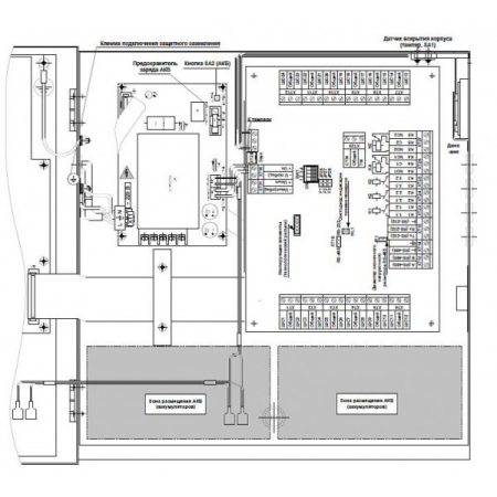
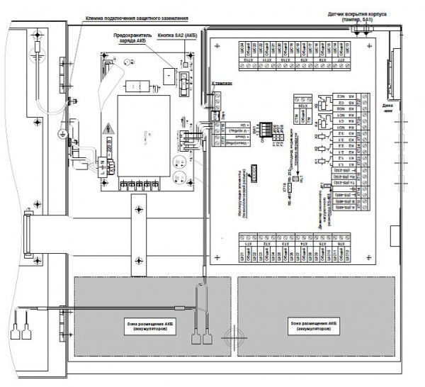
ППКОП Р-020М
Данный товар находится в архиве!
Возможность поставки уточняйте у менеджера!!
ППКОП Р-020-М - автономный/сетевой прибор приёмно-контрольный охранно-пожарный на 24 ШС (универсальных) с подключением в качестве сетевого устройства по интерфейсу RS-485 к БЦП Р-08, Р-060, в металлическом корпусе, с встроенными: блоком питания под АКБ (7 или 9 Ач - 2шт. приобретаются), консолью управления, считывателем интерфейса (Touch Memory), со степенью защиты - IP20/30 (при дополнительной герметизации кабельных отверстий) входит в состав ИСБ "Индигирка".
Особенности:
- Расширенные функциональные возможности.
- Высокая информативность встроенного блока индикации состояний объекта охраны.
- Подсветка клавиш по трем градациям.
- Сменные шильдики для каждого шлейфа.
- Встроенный интерфейс RS-232 для подключения ПЭВМ, принтера.
- 500 идентификаторов пользователей.
- Энергонезависимый журнал событий (до 1000 записей).
Для увеличения длины линии связи RS-232 необходимо использовать - преобразователь интерфейса (ПИ-01).
Для увеличения длины линии связи RS-485 необходимо использовать - блок ретранслятора линии связи (БРЛ-03).
Ввиду того, что изделие может быть модифицировано, сведения, представленные на данной странице (изображение, характеристики, документация и т.п.), могут отличаться от фактических особенностей товара. За дополнительной информацией обращайтесь в техническую поддержку.
-
Охранно-пожарная сигнализация
-
Адресные системы
-
Радиоканальные системы
-
Астра-Р (ТЕКО)
-
Астра-РИ (ТЕКО)
-
Астра-РИ-М (ТЕКО)
-
Астра-Прайм (ТЕКО)
-
Астра-Zитадель (ТЕКО)
-
Ладога-РК (Риэлта)
-
С2000Р (Болид)
-
ВЕКТОР-АР (Сибирский Арсенал)
-
ВЕТТА-2020 (Сибирский Арсенал)
-
ГРАНИТ-РК (Сибирский Арсенал)
-
Риф-Ринг-1 (Альтоника)
-
Риф-Ринг-2 (Альтоника)
-
Риф-Ринг-701 (Альтоника)
-
Риф-Ринг-200 (Альтоника)
-
Lonta Optima (Альтоника)
-
Lonta-202 (Альтоника)
-
ACS (GSN)
-
-
GSM системы
-
Приборы приемно-контрольные
-
Извещатели охранные для помещений
-
Извещатели магнитоконтактные
-
Извещатели тревожной сигнализации
-
Извещатели разбития стекла акустические
-
Извещатели разбития стекла ударноконтактные
-
Извещатели движения ультразвуковые
-
Извещатели движения инфракрасные объемные
-
Извещатели движения пассивные инфракрасные поверхностные (штора)
-
Извещатели движения пассивные инфракрасные линейные (коридор)
-
Извещатели движения пассивные инфракрасные потолочные
-
Извещатели движения комбинированные
-
Извещатели совмещенные
-
Извещатели вибрационные и емкостные
-
-
Извещатели охраны периметра
-
Извещатели охраны периметра линейные ИК-активные
-
Извещатели охраны периметра линейные радиоволновые для установки на открытых участках
-
Извещатели охраны периметра ИК-пассивные
-
Извещатели охраны периметра объемные радиоволновые
-
Извещатели охраны периметра комбинированные
-
Извещатели охраны периметра проводно-волновые
-
Извещатели охраны периметра вибрационные
-
-
Извещатели пожарные
-
Извещатели дымовые 2-х проводные
-
Извещатели дымовые 4-х проводные
-
Извещатели дымовые автономные
-
Извещатели дымовые линейные
-
Извещатели дымовые аспирационные
-
Извещатели тепловые максимальные (пороговые)
-
Извещатели тепловые максимально-дифференциальные
-
Извещатели линейные тепловые пожарные
-
Извещатели пламени
-
Извещатели ручные
-
Извещатели комбинированные
-
-
Извещатели аварийные
-
Оповещатели
-
Светильники и аварийное освещение
-
Системы активной защиты
-
Распродажа
-
-
Системы охранного телевидения
-
Системы контроля и управления доступом
-
Домофоны
-
IP-домофония
-
Идентификаторы
-
Кнопки выхода
-
Считыватели
-
Кодовые панели
-
Автономные устройства контроля доступа
-
Сетевые системы контроля доступа
-
Биометрический контроль доступа
-
Системы обратной и диспетчерской связи
-
Замки
-
Электрозащелки
-
Доводчики
-
Турникеты
-
Калитки
-
Ограждения
-
Шлагбаумы
-
Автоматика для ворот
-
Досмотровое оборудование
-
-
Системы оповещения
и управление эвакуацией-
СОУЭ Тромбон
-
СОУЭ Ария (Электротехника и Автоматика)
-
СОУЭ Соната (ВИСТЛ)
-
СОУЭ С (ИП Раченков)
-
СОУЭ МЕТА
-
СОУЭ Октава (Полисервис)
-
СОУЭ Рокот (Сибирский Арсенал)
-
СОУЭ РЕЧОР (РУССБЫТ)
-
СОУЭ РЕЧОР-АТ (АНТИТЕРРОР) (РУССБЫТ)
-
СОУЭ ПКИ-Р (СпецКомИнтегРо)
-
Системы оповещения о пожаре Asenware
-
СОУЭ ROXTON
-
Звуковое оборудование RORSYS
-
СОУЭ JDM
-
СОУЭ MKV
-
СОУЭ ZVON
-
СОУЭ INTER-М
-
-
Взрывозащищенное оборудование
-
Извещатели пожарные взрывозащищенные
-
Извещатели пожарные тепловые резервуарные
-
Извещатели пожарные тепловые точечные
-
Извещатели пожарные тепловые максимально-дифференциальные
-
Извещатели пожарные дымовые
-
Извещатели пожарные комбинированные
-
Извещатели пожарные ручные взрывозащищенные
-
Извещатели пожарные пламени взрывозащищенные
-
Комплектующие к пожарным извещателям
-
-
Извещатели пожарные линейные взрывозащищенные
-
Извещатели охранные взрывозащищенные
-
Извещатели аварийные взрывозащищенные
-
Оповещатели взрывозащищенные
-
Табло оповещения взрывозащищённое
-
Приборы приемно-контрольные и пульты управления взрывозащищенные
-
Адресные взрывозащищенные системы
-
Посты управления взрывозащищенные
-
Системы видеонаблюдения взрывозащищенные
-
Системы контроля доступа взрывозащищенные
-
Громкоговорители взрывозащищенные
-
Коробки коммутационные взрывозащищенные
-
Барьеры искрозащиты
-
Кабельные вводы взрывозащищенные
-
-
Источники вторичного электропитания
-
Расходные и монтажные материалы
-
Средства пожаротушения
-
Первичные средства пожаротушения
-
Порошковое пожаротушение
-
Водяное пожаротушение
-
Аэрозольное пожаротушение
-
Газовое пожаротушение
-
Автономные установки пожаротушения
-
Клапан сброса избыточного давления КСИД
-
Водопенное оборудование
-
Шкафы пожарные
-
Дымоудаление
-
Средства защиты и спасения
-
Знаки безопасности и плакаты
-
-
Сетевое оборудование