Количество абонентов
400 (через БК-400)
Максимально комутируемые напряжение/ток, В/А
13,2/1,5
Максимальное количество ключей
2400
Тип считывателя (без считывателя-о ключи ТМ-тм карты-к)
TM; Em-Marine; Mifare
Цвет
Белый
Тип изделия
Блок управления домофона
Подключение
Вх.: 11-и проводное; вых.: 8-и проводное
Индикация
Звуковая
Крепление
На стену и DIN-рейку
Тип установки
Накладной
Материал
Пластик
Напряжение питания, В
187 - 242
Ток потребления. мА
136
Потребляемая мощность, Вт
30
Разъем
Клеммы
Диапазон рабочих температур, °С
+1...+40
Степень защиты, IP
20
Габаритные размеры, мм
188х114х62
Масса, кг
1,2
БУД-430
Артикул: 84290
По запросу
Данный товар находится в архиве!
Возможность поставки уточняйте у менеджера!!
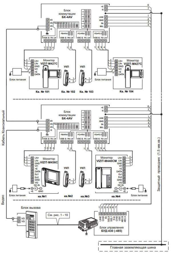
Блок управления и питания домофона. Предназначен для работы совместно с блоками вызова серий 300 и 400. Напряжение питания (190-240VAC). Емкость до 400 абонентов. Функции контроллера ключей ТМ и RF (до 2400 шт.), питание и управление открытием замка. Рекомендуется использовать совместно с монтажным боксом VIZIT-MB1 (МВ1А, МВ1Р,MB2Р).
Характеристики:
Производитель:
Модус-Н
Описание:
БУД-430- блок управления домофона на 400 абонентов (через БК-400) работает в комплекте c блоками вызова серий 300 и 400 ( кроме БВД-311, БВД-313,БВД-321,БВД-341 ) для подъезда жилого дома.
Особенности:
- дуплексная громкоговорящая связь с абонентом;
- возможность включения режима «АКЦЕПТ» - автоматическая запись пользовательских ключей при сплошном списке хранения ключей;
- возможность установки/изменения пользователем индивидуального кода доступа;
- возможность построения системы, обслуживающей до 4-х входов в подъезд;
- автоматическая компенсация сопротивления линии, повышающая устойчивость работы разговорного тракта при длинных линиях;
- электронная регулировка громкости в БВД;
- электронная защита от перегрузки цепей управления замка;
- поддержка «гостиничной» нумерации квартир;
- возможность обновления базы ключей, включения/выключения вызова квартир,изменения системных установок с помощью бесконтактного модуля памяти VIZIT-RFM4;
- возможность обновления ПО блока на объекте (с использованием CU-14)
- сообщения на дисплее - на языке страны-потребителя;
- пользовательское и служебное меню на дисплее блока вызова;
- память на 2400 ( 6х400 квартир или 12х200 квартир ) ключей VIZIT-TM / VIZIT-RF;
- работа с пультом консьержа VIZIT;
- диапазон рабочих температур, °С - от + 1 до + 40.
Техническая документация
Сертификаты
Ввиду того, что изделие может быть модифицировано, сведения, представленные на данной странице (изображение, характеристики, документация и т.п.), могут отличаться от фактических особенностей товара. За дополнительной информацией обращайтесь в техническую поддержку.
Каталог товаров
-
Охранно-пожарная сигнализация
-
Адресные системы
-
Радиоканальные системы
-
Астра-Р (ТЕКО)
-
Астра-РИ (ТЕКО)
-
Астра-РИ-М (ТЕКО)
-
Астра-Прайм (ТЕКО)
-
Астра-Zитадель (ТЕКО)
-
Ладога-РК (Риэлта)
-
С2000Р (Болид)
-
ВЕКТОР-АР (Сибирский Арсенал)
-
ВЕТТА-2020 (Сибирский Арсенал)
-
ГРАНИТ-РК (Сибирский Арсенал)
-
Риф-Ринг-1 (Альтоника)
-
Риф-Ринг-2 (Альтоника)
-
Риф-Ринг-701 (Альтоника)
-
Риф-Ринг-200 (Альтоника)
-
Lonta Optima (Альтоника)
-
Lonta-202 (Альтоника)
-
ACS (GSN)
-
-
GSM системы
-
Приборы приемно-контрольные
-
Извещатели охранные для помещений
-
Извещатели магнитоконтактные
-
Извещатели тревожной сигнализации
-
Извещатели разбития стекла акустические
-
Извещатели разбития стекла ударноконтактные
-
Извещатели движения ультразвуковые
-
Извещатели движения инфракрасные объемные
-
Извещатели движения пассивные инфракрасные поверхностные (штора)
-
Извещатели движения пассивные инфракрасные линейные (коридор)
-
Извещатели движения пассивные инфракрасные потолочные
-
Извещатели движения комбинированные
-
Извещатели совмещенные
-
Извещатели вибрационные и емкостные
-
-
Извещатели охраны периметра
-
Извещатели охраны периметра линейные ИК-активные
-
Извещатели охраны периметра линейные радиоволновые для установки на открытых участках
-
Извещатели охраны периметра ИК-пассивные
-
Извещатели охраны периметра объемные радиоволновые
-
Извещатели охраны периметра комбинированные
-
Извещатели охраны периметра проводно-волновые
-
Извещатели охраны периметра вибрационные
-
-
Извещатели пожарные
-
Извещатели дымовые 2-х проводные
-
Извещатели дымовые 4-х проводные
-
Извещатели дымовые автономные
-
Извещатели дымовые линейные
-
Извещатели дымовые аспирационные
-
Извещатели тепловые максимальные (пороговые)
-
Извещатели тепловые максимально-дифференциальные
-
Извещатели линейные тепловые пожарные
-
Извещатели пламени
-
Извещатели ручные
-
Извещатели комбинированные
-
-
Извещатели аварийные
-
Оповещатели
-
Светильники и аварийное освещение
-
Системы активной защиты
-
Распродажа
-
-
Системы охранного телевидения
-
Системы контроля и управления доступом
-
Домофоны
-
IP-домофония
-
Идентификаторы
-
Кнопки выхода
-
Считыватели
-
Кодовые панели
-
Автономные устройства контроля доступа
-
Сетевые системы контроля доступа
-
Биометрический контроль доступа
-
Системы обратной и диспетчерской связи
-
Замки
-
Электрозащелки
-
Доводчики
-
Турникеты
-
Калитки
-
Ограждения
-
Шлагбаумы
-
Автоматика для ворот
-
Досмотровое оборудование
-
-
Системы оповещения
и управление эвакуацией-
СОУЭ Тромбон
-
СОУЭ Ария (Электротехника и Автоматика)
-
СОУЭ Соната (ВИСТЛ)
-
СОУЭ С (ИП Раченков)
-
СОУЭ МЕТА
-
СОУЭ Октава (Полисервис)
-
СОУЭ Рокот (Сибирский Арсенал)
-
СОУЭ РЕЧОР (РУССБЫТ)
-
СОУЭ РЕЧОР-АТ (АНТИТЕРРОР) (РУССБЫТ)
-
СОУЭ ПКИ-Р (СпецКомИнтегРо)
-
Системы оповещения о пожаре Asenware
-
СОУЭ ROXTON
-
Звуковое оборудование RORSYS
-
СОУЭ JDM
-
СОУЭ MKV
-
СОУЭ ZVON
-
СОУЭ INTER-М
-
-
Взрывозащищенное оборудование
-
Извещатели пожарные взрывозащищенные
-
Извещатели пожарные тепловые резервуарные
-
Извещатели пожарные тепловые точечные
-
Извещатели пожарные тепловые максимально-дифференциальные
-
Извещатели пожарные дымовые
-
Извещатели пожарные комбинированные
-
Извещатели пожарные ручные взрывозащищенные
-
Извещатели пожарные пламени взрывозащищенные
-
Комплектующие к пожарным извещателям
-
-
Извещатели пожарные линейные взрывозащищенные
-
Извещатели охранные взрывозащищенные
-
Извещатели аварийные взрывозащищенные
-
Оповещатели взрывозащищенные
-
Табло оповещения взрывозащищённое
-
Приборы приемно-контрольные и пульты управления взрывозащищенные
-
Адресные взрывозащищенные системы
-
Посты управления взрывозащищенные
-
Системы видеонаблюдения взрывозащищенные
-
Системы контроля доступа взрывозащищенные
-
Громкоговорители взрывозащищенные
-
Коробки коммутационные взрывозащищенные
-
Барьеры искрозащиты
-
Кабельные вводы взрывозащищенные
-
-
Источники вторичного электропитания
-
Расходные и монтажные материалы
-
Средства пожаротушения
-
Первичные средства пожаротушения
-
Порошковое пожаротушение
-
Водяное пожаротушение
-
Аэрозольное пожаротушение
-
Газовое пожаротушение
-
Автономные установки пожаротушения
-
Клапан сброса избыточного давления КСИД
-
Водопенное оборудование
-
Шкафы пожарные
-
Дымоудаление
-
Средства защиты и спасения
-
Знаки безопасности и плакаты
-
-
Сетевое оборудование