Количество ШС
1 (тампер вскрытия)
Количество пользователей, не более
65534
Исполнение
С модулем питания ИБП-12
Максимальное кол-во устройств в системе, шт.
127
Максимальная длина линии связи, м
15 (RS-232); 1200 (RS-485)
Рекомендованный кабель
2-х парный витой (экранир, неэкранир)
Энергонезависимая память,
200 000
Рекомендуемый АКБ, А*ч
2х12
Количество светодиодов, шт.
3
Количество адресных сигнальных/исполнительных устройств
32385 (ШС кольцо), 2х32385 (ШС радиаль)
Время готовности к работе, с, не более
500
Рабочая скорость передачи, Бит/с
7680; 15360; 30720; 92160
Интерфейс
Ethernet , RS-485, RS-232, USB
Карта памяти
SD (128GB)
Тип изделия
Блок центральный процессорный, адресный
Материал
Металл, окрашенный порошковым методом
Возможность подключения неадресного оборудования
Принтер, GSM модем
Цвет
Светло-серый
Индикация
Световая
Напряжение питания, В
187 - 242
Ток потребления. мА
460
Потребляемая мощность, Вт
60
Разъем
RJ-45, USB, клеммы
Диапазон рабочих температур, °С
+5...+50
Степень защиты, IP
20
Габаритные размеры, мм
339х415х155
Масса, кг
6,5
БЦП Р-08 исп.8
По запросу
Данный товар находится в архиве!
Возможность поставки уточняйте у менеджера!!
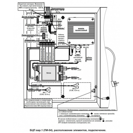
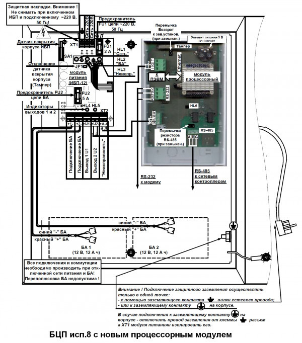
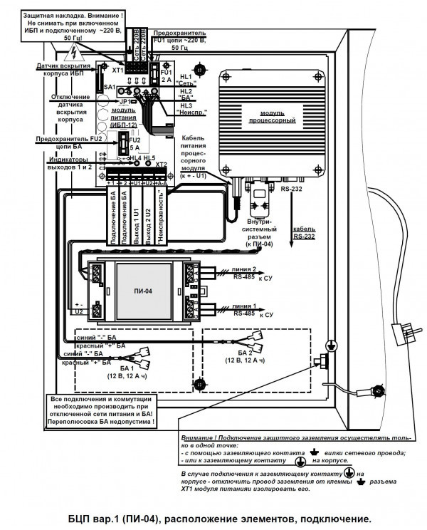
БЦП исп.8 в составе ППКОПиУ 01059-1000-3 Р-08 предназначен для работы с адресными и адресно-аналоговыми устройствами (АУ) промышленного исполнения (АУ с индексом исп.08 ), которые подключаются к адресному шлейфу (адресной линии связи). Выполнен на основе контроллера, установленного в металлический корпус со встроенным источником электропитания с резервированием. Не имеет встроенного адресного шлейфа и встроенного пульта и обеспечивает работу адресных шлейфов через внешние контроллеры КА-2 исп.08 по интерфейсу RS-485.
Характеристики:
Производитель:
СИГМА-ИС
Описание:
БЦП Р-08 исп.8 - блок центральный процессорный для работы с адресными и адресно-аналоговыми устройствами, в металлическом корпусе, встроенным блоком питания - 12В/3А (модуль питания ИБП-12)и отсеком под АКБ (2х12Ач), без встроенной консоли управления, со степенью защиты - IP20 входит в состав ИСБ "Индигирка".
Особенности:
- Контроль до 32385 адресных устройств (кольцевые ШС) или до 64770 адресных устройств (радиальные ШС), посредством внешнего контроллера - КА2 исп.08 (до 127 шт.), подключенных через: RS-485.
- Подключения к ПЭВМ (сети ПЭВМ) с помощью интерфейса Ethernet.
- Передача состояния объектов во внешние системы через протокол Modbus TCP Slave (при наличии в БЦП лицензий ИД-ЛИЦ-КПУ-К2-МДБ).
- Отображение на АРМ ПЭВМ с установленным СПО ИНДИГИРКА всей информации о состоянии системы, областей, технических средств, происходящих событий, графических планов и др.
- Просмотр состояния/управление/конфигурирование подключенных устройств на АРМ ПЭВМ с установленным СПО ИНДИГИРКА.
- Подключение вспомогательных устройств по интерфейсу RS-232 и USB (радиомодемы, GSM модемы, принтеры и др.).
- Сохранение до 200 000 событий в энергонезависимой памяти.
- Автоматическое нахождение устройств на адресном шлейфе (plug & play).
- Объединение подключенных устройств в области.
- Поддержка до 65534 пользователей (для СКУД, охранной сигнализации и др.).
- Управление системой на базе областей (сброс/взятие/снятие/обход неготовых) с СПО ИНДИГИРКА.
- Автоматическое управление выходами (локальными или на адресных устройствах) добавленными в области, в соответствии с текущим состоянием области и конфигурации выхода.
- Объединение состояния нескольких областей в одну (или несколько) областей верхнего уровня.
Техническая документация
- (Руковод по прим адрес-аналог сист ПС) 2006г
- ПО «Рубеж-08» 3.5.1 ред.3 (Загрузчик модулей. Руков админ) 2008г
- ПО «Рубеж-08» 3.5.1 ред.4 (Реком по доп. настр в WinXP SP2) 2008г
- ПО «Рубеж-08» 3.5.1 ред.7 (Лицензирование) 2008г
- ПО «Рубеж-08» 3.5.1 ред.9 (Руков по уст и обновл) 2008г
- ПО «Рубеж-08» 3.5.1 ред.19 (Тех описание) 2008г
- ПО «Рубеж-08» (ТТД, описание, возмож, расшир.)
- ППКОПУ «Рубеж-08» ред.1 (рекоменд по SMS оповещ) 2007г
- ППКОПУ «Рубеж-08» ред.1 (рекоменд по работе с оптоволокон линиями) 2007г
- ППКОПУ «Рубеж-08» ред.2 (рекоменд по работе с радио СПЕКТР-433) 2017г
- ППКОПУ «Рубеж-08» ред.3 (руков пользов) 2018г
- ППКОПУ «Рубеж-08» ред.6 (руков оператора) 2018г
- ППКОПУ «Рубеж-08» ред.7 (Рубеж Скрипт - программирование) руков 2018г
- ППКОПУ «Рубеж-08» ред.14 (руков по прогр) 2019г
- ППКОПУ БЦП Р-08 ред.10 ( исп. 8 адрес+адрес-аналог сист) руков эксплуа 2020г
- Программатор Рубеж-060 и Рубеж-08 ред.2 руков 2008г
- Распределитель лицензий (вер.2 2017г)
- Рекомендации по уст ПО Р-08 в Windows10 (ред.1 2019г)
- Электрон. ключи. ред.1 (Руков пользов) 2006г
Сертификаты
Ввиду того, что изделие может быть модифицировано, сведения, представленные на данной странице (изображение, характеристики, документация и т.п.), могут отличаться от фактических особенностей товара. За дополнительной информацией обращайтесь в техническую поддержку.